Ecuestre L57









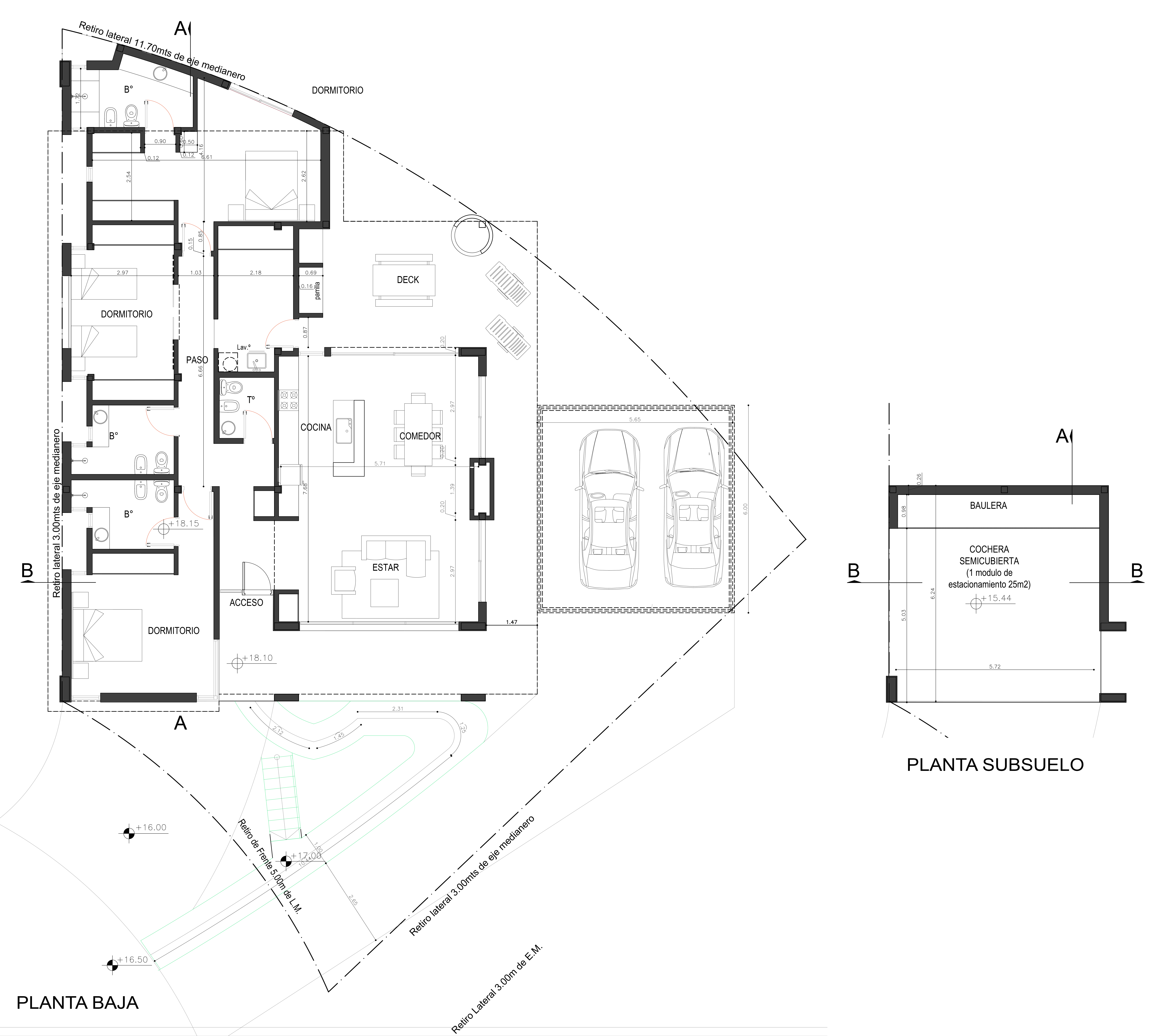
Vivienda unifamiliar. Ubicada en el Barrio Ecuestre - Costa Esmeralda, se proyecta una vivienda de 160m2 cubiertos y 40m2 de superficie semicubierta. Aprovechando la pendiente del terreno, la casa cuenta con un amplio estar-comedor con cocina integrada que expande hacia el exterior, además de 3 dormitorios completamente equipados. En el nivel inferior, la casa cuenta con un espacio semicubierto, que hace las veces de cochera o guardado.