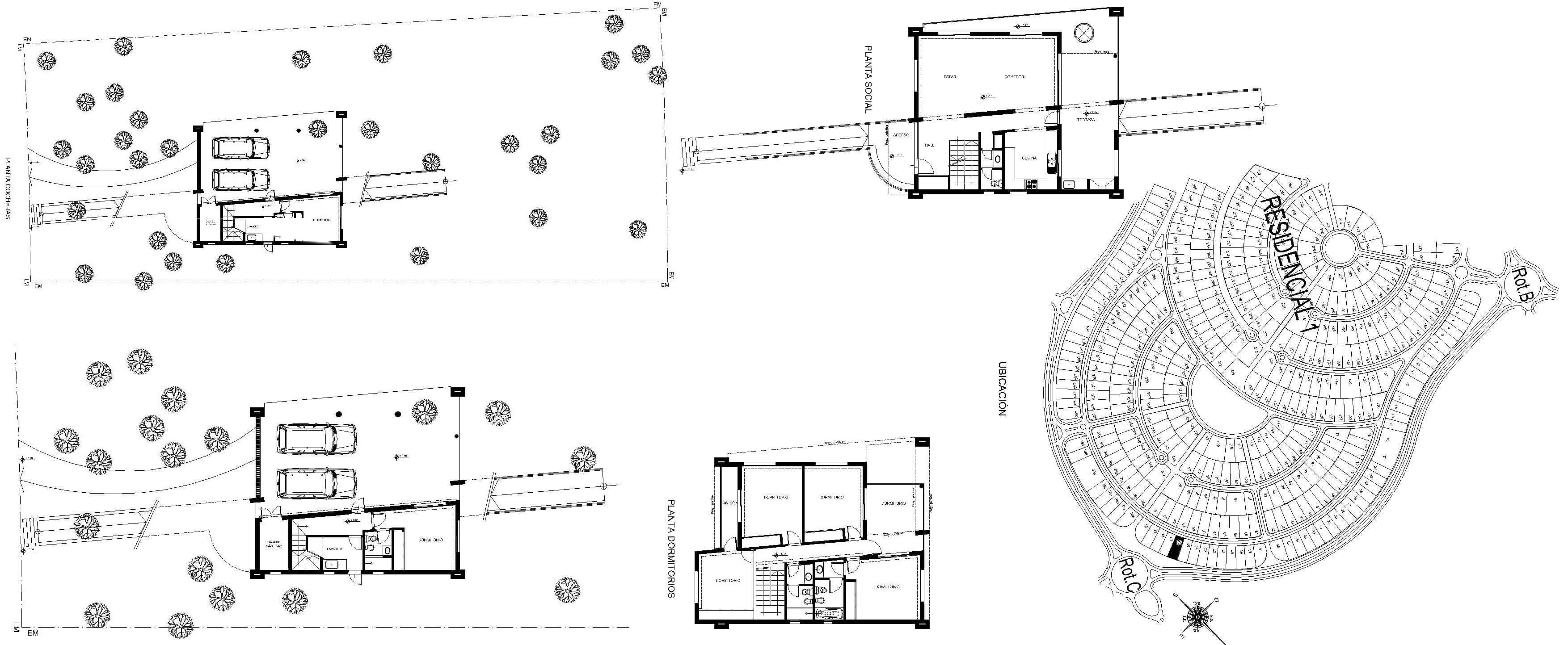
Vivienda Costa Esmeralda




















Se implanta la vivienda en un claro central del bosque respetando toda la forestación existente. Al encontrar una gran depresión del terreno en este sector se adoptó el criterio de acceder a la planta social por rampas que se nivelan con el exterior.